Description
Scarborough– decorative tool, storage, potting shed, man cave, she shed, bunkie, office, cabin
Package: Length 160″ Width 44″ Height 32″ (2442 lbs)
Tip: assemble on a LEVEL concrete slab, paving stones, or treated 4×4’s to raise the building off the ground
Assembly:
Video: see our video section to view assembly video
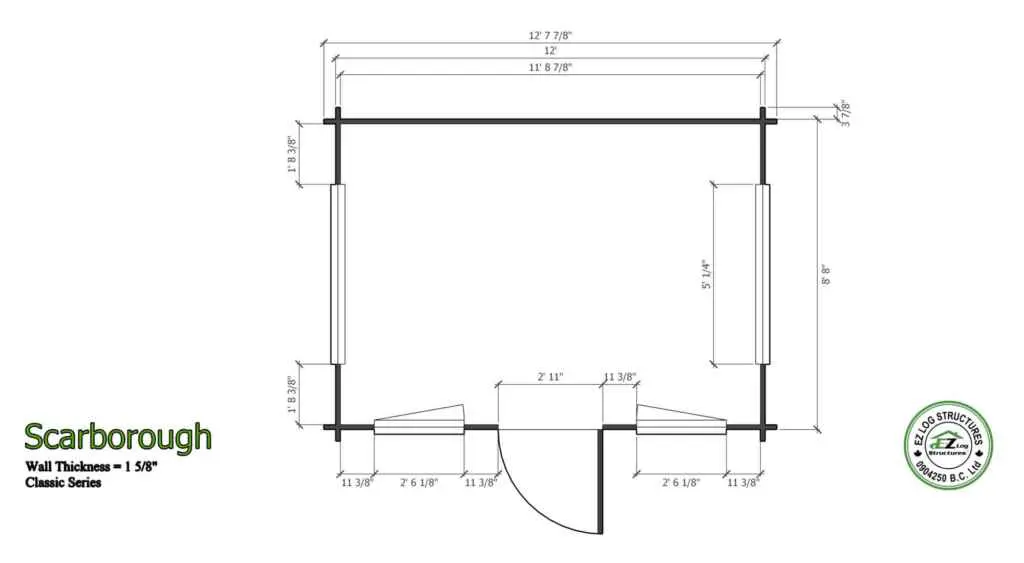
See the technical drawings above for a complete parts list in imperial or metric measurements











Reviews
There are no reviews yet.