Description
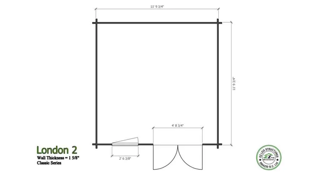
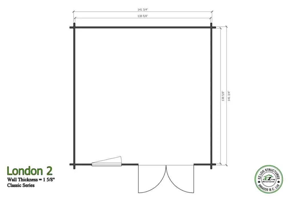
London 2– decorative tool, storage, potting shed, man cave, she shed, bunkie, office, cabin
Package: Length 201″ Width 43″ Height 26″ (2447 lbs.)
Tip: assemble on a LEVEL concrete slab, paving stones, or treated 4×4’s to raise the building off the ground
Assembly:
Video: see our video section to view assembly video
See the technical drawings above for a complete parts list in imperial or metric measurements





















Reviews
There are no reviews yet.