Description
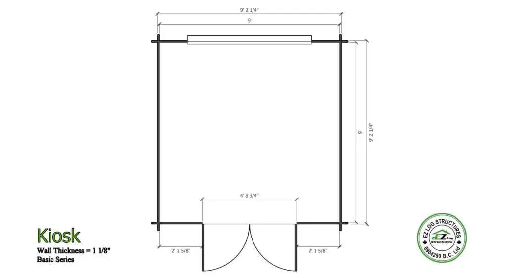
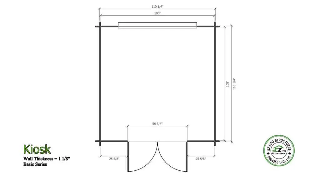
Kiosk– decorative tool, storage, potting shed, man cave, she shed, bunkie, office, cabin
Package: Length 144″ Width 44″ Height 21″ (1455 lbs)
Tip: assemble on a LEVEL concrete slab, paving stones, or treated 4×4’s to raise the building off the ground
Assembly:
Video: see our video section to view assembly video
See the technical drawings above for a complete parts list in imperial or metric measurements
















Reviews
There are no reviews yet.