Description
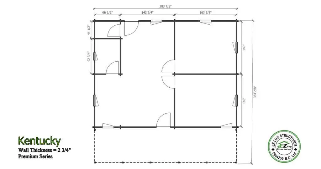
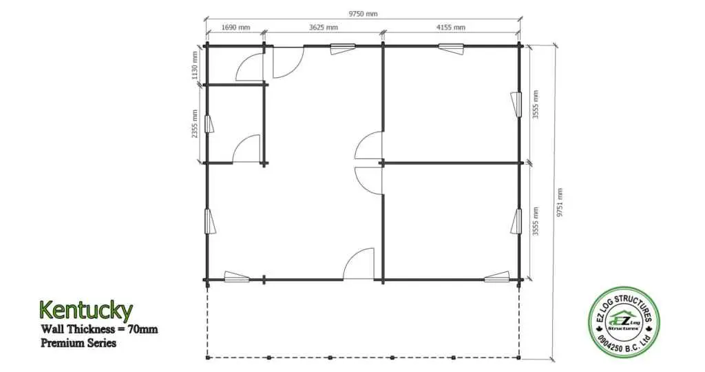
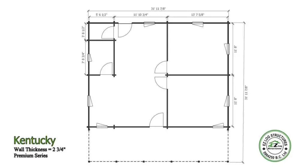
The KENTUCKY is a Premium model using 70mm (2 3/4″) wall logs. The total footprint of this model is 32′ x 32′ for 1024 sq’ which includes the covered deck. The main building is 24′ x 32′ or 768 sq’ with 2 bedrooms, bathroom, utility room and a large open living area. The side wall height is just under 95″ with a ceiling height at the center of 16′. The vaulted ceilings throughout provide a spacious open design. The front deck is 32′ x 8′ for a total of 256 sq’ of covered area to relax. Floor plans can be modified as needed. An optional loft over the 2 bedrooms would add storage space.
WALL INSULATING KIT: Add 10% for the wall insulating kit including 2×4 studs, metal stud brackets plus 3/4″ wall cover boards for interior or exterior application. When insulating on the exterior the foundation must be larger

Energy efficiency: Our solid wood walls add an additional R 4.4 and have virtually no heat or cold transfer, increasing the overall thermal and comfort benefits
Tip: Mineral wool insulation is recommended for log construction. It’s impervious to moisture with a higher R-value per inch than fiberglass, reduces noise levels & is environmentally friendly
Insulating the roof: Apply locally supplied materials to add rafters over the tongue & groove roof boards. The build up depth is determined by the required R-value in the ceiling to meet local building codes. High density spray foam provides maximum benefits, highest R-value for thickness & is water proof. These added rafters also increase the roof load capacity
OPTION A: Upgrade wood windows to triple glazed / Low E / Argon filled glass
- USD regular price $ 749.00
- CAD regular price $ 960.00
OPTION B: Upgrade wood windows to our exclusive maintenance free white PVC/Shutter windows with triple glazed / Low E / Argon filled glass plus exterior rolling shutters that are controlled from the interior. These unique windows provide added comfort and security. They improve the overall energy efficiency by keeping the heat out during the summer and the cold out in the winter. They also reduce outside noise levels and provide complete darkness for daytime sleepers. (See our Videos page)
- USD regular price $ 1,560.00
- CAD regular price $ 2,000.00

Assembly: The model can be assembled in approximately 9 days with 3 people
Tip: House wraps & vapor barriers are required in most regions when insulating
Building Codes: Premium series homes & cabins are manufactured to meet all structural requirements for building codes including, California Title 24, earthquake, heavy snow load regions and hurricane zones
Kit includes:
- no floor, ready to assemble on a concrete slab or wood foundation
- pre-cut, numbered exterior walls
- pre-cut, numbered interior walls
- pre-cut, numbered gable components
- 3/12 roof pitch (14 degrees)
- vaulted, cathedral ceilings
- pre-cut, 100mm x 200mm (4″x8″) glulam roof purlins spaced 558mm (22″) or less
- pre-cut, numbered (18mm) 3/4″ tongue & groove roof boards
- pre-cut, numbered fascia boards
- 4 interior doors 812mm x 2040mm (32″x80″)
- 7 single wide wood windows 765mm x 990mm (30″x 39″)
- 1 single wide wood windows 530 x 530 (21″x 21″)
- 2 exterior door with multi locking hardware 1/2 glass tempered 990mm x 2040mm (36″x80″)
- 1 exterior double door 1550mm x 2040mm (61″ x 80″) 1/2 glass tempered
- pre-built deck railings with vertical balustrades
- adjustable posts
- hardware for doors & windows
- threaded steel storm rods for perimeter wall junctions
- 2 spare wall logs/spare roof boards
- 400 – 8″ log torque head log screws to connect first 2 rows, top row, gable components, purlins
- packaged/wrapped and marked for sequence of assembly















Reviews
There are no reviews yet.