Description
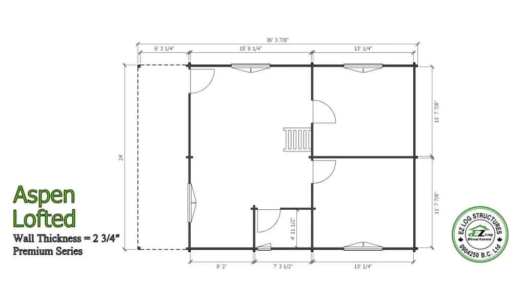
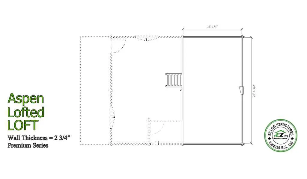
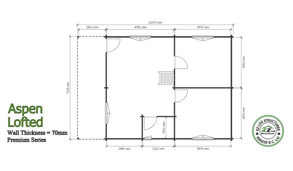
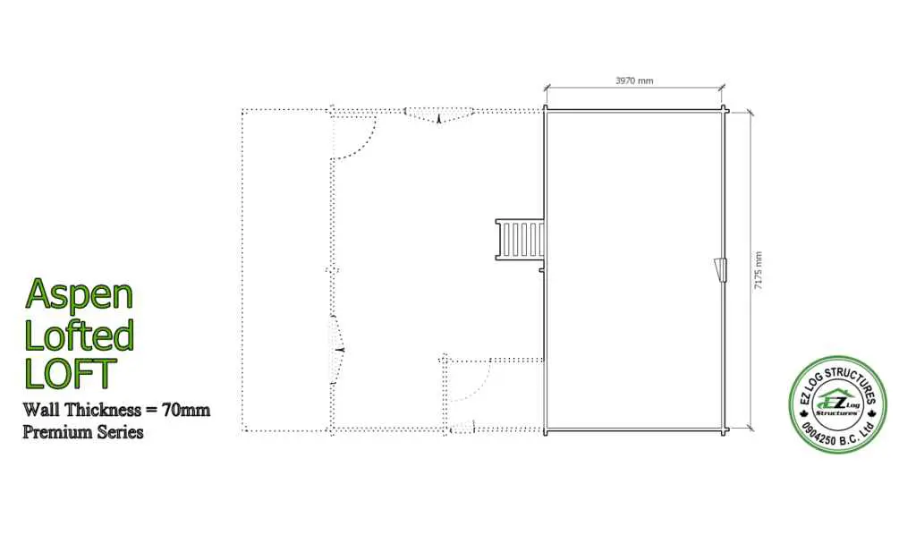
The Aspen is a compact 2 bedroom home with a large loft area. The sidewall height is 95″ to the underside of the loft floor beams providing plenty of ceiling height in the bedrooms. The loft has 36″ sidewalls that create a higher loft area. The balance of the house has vaulted/cathedral ceilings throughout. (sq footage is based the total footprint, living space could be less, see floor plans)
WALL INSULATING KIT: Add 10% for the wall insulating kit including 2×4 studs, metal stud brackets plus 3/4″ wall cover boards for interior or exterior application. When insulating on the exterior the foundation must be larger

Energy efficiency: Our solid wood walls add an additional R 4.4 and have virtually no heat or cold transfer, increasing the overall thermal and comfort benefits
Tip: Mineral wool insulation is recommended for log construction. It’s impervious to moisture with a higher R-value per inch than fiberglass, reduces noise levels & is environmentally friendly
Insulating the roof: Apply locally supplied materials to add rafters over the tongue & groove roof boards. The build up depth is determined by the required R-value in the ceiling to meet local building codes. High density spray foam provides maximum benefits, highest R-value for thickness & is water proof. These added rafters also increase the roof load capacity
OPTION A: Upgrade wood windows to triple glazed / Low E / Argon filled glass
- USD regular price $ 936.00
- CAD regular price $ 1,200.00
OPTION B: Upgrade wood windows to our exclusive maintenance free white PVC/Shutter windows with triple glazed / Low E / Argon filled glass plus exterior rolling shutters that are controlled from the interior. These unique windows provide added comfort and security. They improve the overall energy efficiency be keeping the heat out during the summer and the cold out in the winter. They also reduce outside noise levels and provide complete darkness for daytime sleepers. (See our Videos page)
- USD regular price $ 1,950.00
- CAD regular price $ 2,500.00

Assembly: The model can be assembled in approximately 8 days with 3 people
Tip: House wraps & vapor barriers are required in most regions when insulating
Building Codes: Premium series homes & cabins are manufactured to meet all structural requirements for building codes including, California Title 24, earthquake, heavy snow load regions and hurricane zones
Kit includes:
- no floor, ready to assemble on a concrete slab or wood foundation
- pre-cut, numbered exterior walls
- pre-cut, numbered interior walls
- pre-cut, numbered gable components
- 4/12 roof pitch (18 degrees)
- vaulted, cathedral ceilings
- pre-cut, 100mm x 200mm (4″x8″) glulam roof purlins spaced 558mm (22″) or less
- pre-cut, numbered (18mm) 3/4″ tongue & groove roof boards
- loft ladder
- pre-cut, numbered fascia boards
- 3 interior doors 812mm x 2040mm (32″x80″)
- 4 double wide wood windows 1530mm x 990mm (60″x 39″)
- 2 single wide wood window 530mm x 530mm (21″ x 21″)
- 1 exterior door with multi locking hardware 1/2 glass tempered 990mm x 2040mm (36″x80″)
- pre-built deck railings with vertical balustrades
- adjustable posts
- hardware for doors & windows
- threaded steel storm rods for perimeter wall junctions
- 2 spare wall logs/spare roof boards
- 400 – 8″ log torque head log screws to connect first 2 rows, top row, gable components, purlins
- packaged/wrapped and marked for sequence of assembly




















Reviews
There are no reviews yet.